
2020.03.30
写真でわかるおしゃれな広島の中古マンションのリノベーション事例【第2弾】
リノベする
住宅市場において、マイホームの選択肢として存在感を増している「中古マンションを買ってリノベーション」という方法。新築マンションよりも手頃な値段で物件を取得できることや、自分好みに部屋をカスタマイズできることで人気を呼んでいます。
ただ実際にマンションの部屋をリノベーションするといっても、どんな風に変わるのか、どこまで変えられるのかイメージがつかないといったことも多々あるのではないでしょうか。この記事ではリノベーションすることでどのように部屋が変わるのか、広島で中古マンションのリノベーションを行なった事例を写真とともにご紹介します。
黒とモルタルグレーを基調にしたこだわりリノベーション

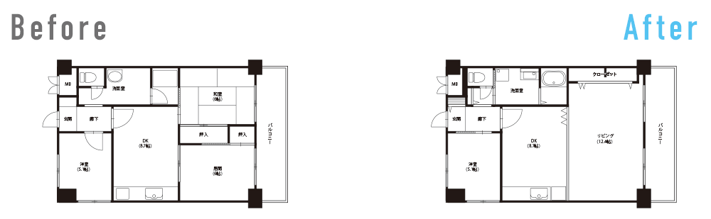
DATA
延床面積 / 94.5㎡
間取り / Before:4LDK→2LDK+WIC
築年数 / 45年
非日常を取り入れた大胆リノベ
ご施主様の希望により、「夫婦が子ども二人と暮らす家」という一般的なイメージから脱却し、「日常を離れて楽しむ店舗」のイメージを取り入れたこのリノベーション。もともと94.5㎡・4LDKの広々とした空間を存分に生かし、2LDK+WICに間取り変更しました。
お部屋全体がモルタルグレーのシンプルなクロスとオーク材のコントラストで統一されており、手摺りや家具の黒がそれらの調和を引き締めいています。
小上がりのある広々リビング・ダイニング

元々和室の続き間だった場所を、小上がりのある個性的なリビング・ダイニングに。
小上がりを作っても違和感がない贅沢な広さがあります。リビングの小上がりは空間に立体感が生むとともに、子どもたちの楽しい遊び場となっています。

リビングのテレビは掘り込んだ壁の中に設置できるようになっています。テレビ台が不要なことや、掘り込まれた壁の中に薄型テレビがすっぽりと入り込むことよりスペースを広く有効活用できるようになっています。
掃き出し窓のカーテンは、天井の高さから吊り下がるようになっており、窓枠付近にカーテンレールがないためすっきりとした印象になっています。
和室を取り込んだことによりリノベーション前のほぼ倍の面積になったリビング・ダイニングが、細かな工夫によりさらに広々とし、開放感のある印象になっています。
小上がりの奥にはウォークインクローゼット

リビングの小上がりのフリースペースの奥は、3帖の広々としたウォークインクローゼットになっています。個室ほどもある広々としたクローゼットには、家族全員の衣類が収納できるようになっています。
部屋と雰囲気の合ったシステムキッチン

システムキッチンもモルタルグレーのクロスの部屋と雰囲気を合わせたダークグレーのシックなものに。床は耐水性に優れた塩ビタイルが使われています。
リビング・ダイニングとの仕切りがほとんどなく、開放的な対面型を採用。ステンレス調の冷蔵庫など、キッチン家電一つ一つにもこだわりが感じられ、リビング・ダイニングから眺めても違和感のない魅せるキッチンに仕上がっています。
海外のホテルのような大胆なサニタリー

洗面所・トイレ・バスルームをまとめたサニタリー空間は、海外のホテルで多くみられる様式を取り入れ、洗面化粧台と隣のトイレは扉で仕切らず、オープンな作りに。
浴室の扉もガラス製で、開放感溢れる空間になっています。洗面室の扉をロックできるようになっているため、開放感がありながらもプライバシーもしっかり確保できるようになっています。トイレの壁面には、トイレットペーパーさえもお洒落に感じさせるニッチ収納が設けられています。
共用廊下側の洋室を取り込んだ広い土間

リノベーション前は洋室だった部分の一部を取り込んだ広々とした土間は観葉植物や大型のおもちゃ、自転車などを収納する十分なスペースがあり、臨時の収納や趣味など、使い方が広がりそうな空間に。洋室の既存窓があるため、明るく風通しの良い土間に仕上がっています。
土間と繋がる子どもの遊び部屋

一部を土間に取り込んだことで減築された洋室は子どもの遊び部屋になっています。土間に面した壁には開閉可能な横滑り出し窓が設けられ、土間を経由して共用廊下からの明るい光を取り込めるようになっています。
また、子どもの遊び部屋と共用廊下の間に土間を挟むことで、共用廊下から部屋の中の様子をダイレクトに見られないようにして、子どものプライバシーを守ることができるようになっています。
Before → After

カリフォルニアのサーフショップをイメージした1LDK

DATA
延床面積 / 57.37㎡
間取り / Before:3DK→1LDK
築年数 / 35年
サーフショップや海の家をイメージした明るく開放的な空間
無垢の床材と建具を使用し、本物の木の温かさを感じさせるとともに、ご施主様の希望により、サーフショップや海の家を連想させるようなカリフォルニアスタイルに仕上げたリノベーション。ベランダ側の洋室(6帖)、和室(6帖)、押入れの壁を全て取り払い、巨大なサーフボードが映える広々としたリビングに作り替えました。
カフェのような大きなガラスの折れ戸のあるLDK

リビングとダイニングは、壁全体を覆う折れ戸によって仕切られています。まるでカフェのようなこの折れ戸は、幅、高さ、枚数、重さ、強度、開閉のしやすさなどを考え抜き、オリジナルで造作したもの。世界に2つとないこのような作品を家に取り入れることができるのもリノベーションの醍醐味と言えるでしょう。

折れ戸を開くと、ダイニングとリビングが完全に一体化し、開放感溢れる広々LDKに変身します。
リビングの一辺の壁を折れ戸のクローゼットに

リビングの一辺の壁はクローゼットになっており、ここでも巨大な折れ戸が使われています。ルーバーの扉は、LDKの間仕切りの折れ戸と同様に、どこからでも開くことができるようになっている仕様です。

キッチンは、無垢材の床とよくなじむ明るい木目のものを採用。レトロなデザインの冷蔵庫も、木目の雰囲気とよく馴染んでいます。
キッチンを囲むホーローのキッチンパネルは、汚れがさっと拭き取れるだけではなく、マグネットボードやホワイトボードとしても使える優れもの。デザインだけではなく高い実用性も備えたキッチンになっています。
青いアクセントクロスの寝室

寝室の壁の一面は、海をイメージしたアクセントクロスに。窓にはブラインドが設置され、サーファーのご施主様のセンスが光る寝室に仕上がりました。
照明のスイッチにもこだわりが

照明のスイッチは、実験室にあるような「トグルスイッチ」に。電気工事の技術スタッフが、配線と照明の連携に苦心しながら、ただの飾りではない実用インテリアを作り上げました。
Before → After

世界でたった一つの部屋

新築時には基本的に全戸が似たような間取り・デザインで販売されるマンション。しかし、マンションをリノベーションすることで、同じマンションに住みながらも、他の部屋とは一線を画した、まるで注文住宅のような部屋に住むことが可能になるのです。




